Для полноценной работы сайта, необходимо включить JavaScript!
Екатеринбург
Екатеринбург
Тюмень
Тюмень
Екатеринбург
Екатеринбург
Готово
Подберём квартиру за
пару кликов
Найти квартиру
пару кликов
*2011
Недвижимость
Проекты
Квартиры
Ипотека
О компании
Контакты
Тендеры
Подборка
Меню
Меню
Назад
Проекты
Квартиры
Парковочные места
Кладовые
Коммерция
Контакты
О компании
Все проекты
Все проекты
4 проекта
Комсомольский
311 квартир
от 4 200 000 ₽
Бодровский
120 квартир
от 4 552 000 ₽
Тёплые кварталы
104 квартиры
от 5 200 000 ₽
УРАЛКВАРТАЛ
0 квартир
цена по запросу
Все квартиры
535 предложений
Комсомольский
311 предложений
Бодровский
120 предложений
Тёплые кварталы
104 предложения
Все парковки
95 предложений
Бодровский
23 предложения
Тёплые кварталы
72 предложения
Все кладовые
178 предложений
Комсомольский
71 предложение
Бодровский
61 предложение
Тёплые кварталы
46 предложений
Все коммерция
7 предложений
Бодровский
5 предложений
Тёплые кварталы
2 предложения
Скидки до 20%
на все квартиры
Консультация
Екатеринбург
Екатеринбург
Выберите город
Тюмень
Тюмень
Екатеринбург
Екатеринбург
Готово
*2011
Проекты
4
/
Недвижимость
815
Квартиры
535
Кладовые
178
Машиноместа
95
Коммерция
7
Подобрать квартиру
Проект
Комсомольский
Проект
Комсомольский
Проект
Любой
Бодровский
Комсомольский
Тёплые кварталы
Готово
Количество комнат
Студия
1
2
3
4+
Стоимость, ₽
от
4200000.00
-
до
13512000.00
Площадь, м²
от
21,6
-
до
107,1
Срок сдачи
Любой
Срок сдачи
Любой
Срок сдачи
Любой
3 кв. 2026г.
3 кв. 2027г.
4 кв. 2027г.
Готово
Показать все фильтры
Сбросить
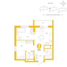
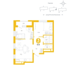
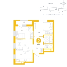
2-комн. квартиры
С мастер-спальней
C террасой
С гардеробной
С двумя санузлами
Нашли 311 квартир
Сначала дешевле
Сначала дешевле
Сортировать
Сначала дешевле
Сначала дороже
Больше площадь
Меньше площадь
Готово
2-комнатная, 54.6 м²
8 152 000 ₽
10 190 000 ₽
В ипотеку — от
35 973 ₽/мес
Комсомольский, этаж 7 из 20
Комфорт
Сдача в 2027
скидка 2 038 000 ₽
Два санузла
Мастер-спальня
2-комнатная, 55.9 м²
8 160 000 ₽
10 200 000 ₽
В ипотеку — от
35 973 ₽/мес
Комсомольский, этаж 2 из 20
Комфорт
Сдача в 2027
скидка 2 040 000 ₽
Два санузла
Мастер-спальня
2-комнатная, 54.8 м²
8 160 000 ₽
10 200 000 ₽
В ипотеку — от
35 973 ₽/мес
Комсомольский, этаж 6 из 20
Комфорт
Сдача в 2027
скидка 2 040 000 ₽
Два санузла
Мастер-спальня
2-комнатная, 52.9 м²
8 160 000 ₽
10 200 000 ₽
В ипотеку — от
35 973 ₽/мес
Комсомольский, этаж 15 из 20
Комфорт
Сдача в 2027
скидка 2 040 000 ₽
Два санузла
Окна на две стороны
2-комнатная, 54.6 м²
8 176 000 ₽
10 220 000 ₽
В ипотеку — от
35 973 ₽/мес
Комсомольский, этаж 8 из 20
Комфорт
Сдача в 2027
скидка 2 044 000 ₽
Два санузла
Мастер-спальня
2-комнатная, 52.6 м²
8 192 000 ₽
10 240 000 ₽
В ипотеку — от
35 973 ₽/мес
Комсомольский, этаж 19 из 20
Комфорт
Сдача в 2027
скидка 2 048 000 ₽
Два санузла
Окна на две стороны
2-комнатная, 52.9 м²
8 200 000 ₽
10 250 000 ₽
В ипотеку — от
35 973 ₽/мес
Комсомольский, этаж 17 из 20
Комфорт
Сдача в 2027
скидка 2 050 000 ₽
Два санузла
Окна на две стороны
Нужна помощь с выбором?
Пройти квиз
2-комнатная, 53.6 м²
8 200 000 ₽
10 250 000 ₽
В ипотеку — от
35 973 ₽/мес
Комсомольский, этаж 11 из 20
Комфорт
Сдача в 2027
скидка 2 050 000 ₽
Два санузла
Мастер-спальня
2-комнатная, 52.9 м²
8 224 000 ₽
10 280 000 ₽
В ипотеку — от
35 973 ₽/мес
Комсомольский, этаж 18 из 20
Комфорт
Сдача в 2027
скидка 2 056 000 ₽
Два санузла
Окна на две стороны
2-комнатная, 49.1 м²
8 224 000 ₽
10 280 000 ₽
В ипотеку — от
35 973 ₽/мес
Комсомольский, этаж 16 из 16
Комфорт
Сдача в 2027
скидка 2 056 000 ₽
Гардеробная
Вид во двор
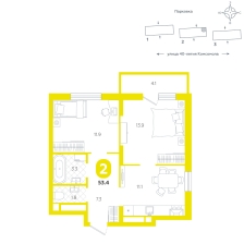
2-комнатная, 53.4 м²
8 224 000 ₽
10 280 000 ₽
В ипотеку — от
35 973 ₽/мес
Комсомольский, этаж 8 из 20
Комфорт
Сдача в 2027
скидка 2 056 000 ₽
Два санузла
Окна на две стороны
показать ещё
Пред
1
...
21
22
23
24
25
...
29
След
закрыть модальное окно
Общие параметры
Проект
Бодровский
Комсомольский
Тёплые кварталы
Стоимость, ₽
от
4200000.00
-
до
13512000.00
Площадь, м²
от
21,6
-
до
107,1
Параметры объекта
Студия
1
2
3
4+
Этаж
Любой
Этаж
Любой
Этаж
Любой
1
2
3
4
5
6
7
8
9
10
11
12
13
14
15
16
17
18
19
20
21
22
23
25
Готово
Дом
Любой
Дом
Любой
Дом
Любой
IV очередь (Тёплые кварталы)
ГП-1 (Бодровский)
ГП-1 (Комсомольский)
ГП-2 (Комсомольский)
ГП-3 (Комсомольский)
Готово
Срок сдачи
Любой
Срок сдачи
Любой
Срок сдачи
Любой
3 кв. 2026г.
3 кв. 2027г.
4 кв. 2027г.
Готово
Дополнительно
Особенности квартир
Два санузла
Мастер-спальня
Гардеробная
Угловое окно
Терраса
Окна на две стороны
Окна на три стороны
Вид во двор
Окно в ванной
Вид на улицу
Лоджия
Акции
метка фильтра
Показать 311 квартир
Сбросить
Мы применяем cookie для стабильной работы сайта и аналитики. Вы можете настроить использование cookie, а также узнать подробности в
политике конфиденциальности
.
Настроить
Принять всё
закрыть модальное окно
Настройка cookies
Обязательные
Файлы cookie, которые необходимы для функционирования паритет.рф
Маркетинговые и аналитические
Эти cookie помогают отслеживать работу сайта, собирать статистику использования и измерять эффективность нашей рекламы.
Проекты
Недвижимость
Ипотека
Подборки
закрыть модальное окно
Заказать такси
Оставьте номер — перезвоним и уточним детали
Номер телефона
Отправить
Нажимая отправить вы соглашаетесь с
обработкой персональных данных
закрыть модальное окно
Получите консультацию
Позвоним в течение 15 минут и ответим на все ваши вопросы
Ваше имя
Номер телефона